| 価格 | 2300万円 | ||
|---|---|---|---|
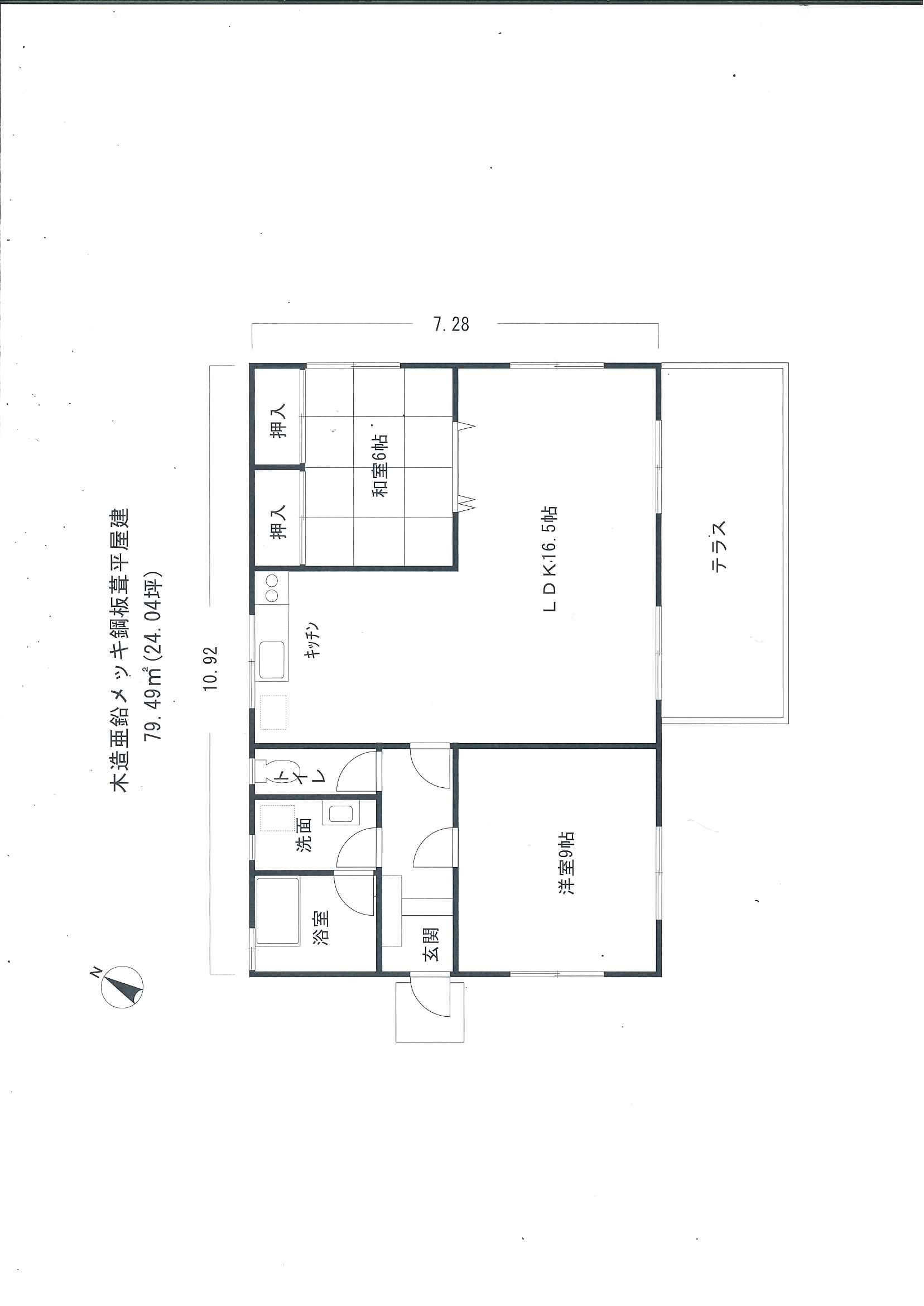
| 間取り (間取り詳細) |
2LDK 平面図参照 |
||
| エリア | 御代田町 | ||
| 所在地 | 北佐久郡御代田町大字草越 | ||
| 交通 | しなの鉄道「御代田駅」より2.45km | ||
| 学区 | |||
| 種別 | 居宅 | 取引形態 | 媒介 |
| 権利関係 | |||
| 土地面積 | 923.97㎡(279.50坪) | ||
| 都市計画 | 区域内 | ||
|---|---|---|---|
| 用途地域 | 第一種低層住居専用地域 | ||
| 建ぺい率 | 40 | 容積率 | 60 |
| 建物面積 | 79.49㎡(24.05坪) | ||
| 築年月日 | H2.増築 | ||
| 構造 | 木造亜鉛 | ||
| 周辺施設 | 雪窓公園 | ||
| 設備 | |||
| 備考 | ・雪窓風致地区第2種 ・敷地内公共下水桝設置済 ※現況簡易水洗トイレ | ||
詳細写真
所在地マップ